





Mobilny Domek całoroczny Toronto 48 m²
Dokładny opis czym różnią się warianty wykończenia znajdziesz TUTAJ .
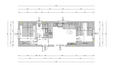
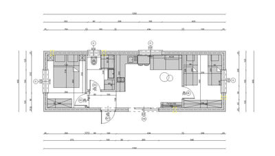
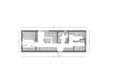
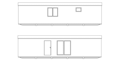
Poznaj model Toronto o optymalnej powierzchni użytkowej 40.25m² – funkcjonalnie zaprojektowany dla osób ceniących elastyczność zagospodarowania wnętrza. Ten całoroczny dom mobilny łączy trwałość wykonania z nowoczesnym wzornictwem, wykluczając komponenty "Made in China". Przystosowany do transportu na terenie UE, Wielkiej Brytanii oraz Ukrainy, zachowuje wysoką odporność na zmienne warunki atmosferyczne.
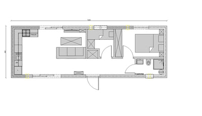
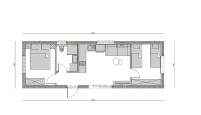
Układ Toronto umożliwia indywidualną konfigurację – salon z jedną lub dwiema sypialniami, łazienką oraz dodatkowymi szafami; dostępna jest również opcja tarasu, zapewniająca komfortowy wypoczynek na świeżym powietrzu. Układ idealnie pasuje dla czteroosobowej, pięcioosobowej rodziny. To idealne rozwiązanie dla osób poszukujących komfortu i swobody w nowoczesnym wydaniu – zarówno jak domek całoroczny, jak i przestronny domek letniskowy.
Kluczowe cechy układu:
- Elastyczność: Już na etapie projektowania istnieje możliwość dostosowania konfiguracji wnętrza, w tym określenia liczby pomieszczeń sypialnych oraz rozmieszczenia mebli.
- Ergonomia: Starannie zaplanowany, kompaktowy układ wnętrza zapewnia wrażenie przestronności i wysoką funkcjonalność użytkową.
- Integracja z naturą: Zastosowanie dużych okien umożliwia płynne połączenie przestrzeni mieszkalnej z otoczeniem, co sprzyja optymalnym warunkom wypoczynku.
🌿 Atuty domku Toronto
-
Nowoczesny, elegancki design z elementami skandynawskiego minimalizmu
-
Układ do 3 sypialni – idealny dla rodzin lub gości
-
Wysoka jakość wykonania i materiały odporne na warunki atmosferyczne
-
W pełni wyposażone wnętrze z możliwością personalizacji wykończenia
-
Przemyślana izolacja termiczna – komfort cieplny przez cały rok
-
Możliwość transportu i ustawienia w dowolnej lokalizacji
-
Gotowy do zamieszkania od razu po dostawie
⚙️ Dane techniczne
| Wymiary zewnętrzne: | 12 m × 4 m |
| Powierzchnia zabudowy: | 48 m² |
| Powierzchnia użytkowa: | 40,25 m² |
| Wysokość zewnętrzna: | 3,5 m |
| Wysokość wewnętrzna: | 2,25 m |
| Ilość sypialni: | 1–3 |
Wybierz opcje






Galeria
DOSTĘPNE WARIANTY WYPOSAŻENIA:
Domki są dostępne w trzech wariantach wykończenia do wyboru:
Light
Wariant z podstawowym wykończeniem, do dalszego samodzielnego wyposażenia.
Co dokładnie zawiera wariant Light?
- Możliwość pełnej personalizacji pod kątem umiejscowienia okien, drzwi, ścianek działowych
- Konstrukcja stalowa z podwoziem lub bez
- Szkielet wykonany ze stalowych profili zamkniętych
- Bardzo solidny, stabilny i trwały szkielet z gęstym użebrowaniem (spawane co 60cm) zabezpieczony podkładem antykorozyjnym
- Wypełnienie podłogi, ścian i dachu ze specjalnego, certyfikowanego drewna konstrukcyjnego o wysokiej klasie wytrzymałości (C24)
- Kompaktowe osie i koła do transportu po placu
- Izolacja przeciwwilgociowa, paroizolacja i izolacja wiatrochronna w podłodze, ścianach i dachu
- Izolacja termiczna podłogi i dachu wełną mineralną o grubości 200mm w standardzie
- Izolacja termiczna ścian zewnętrznych wełną mineralną o grubości 150mm w standardzie
- Podłoga z płyty OSB o grubości 22m pióro-wpust
- Okna PCV 3-szybowe z okleiną jednostronna/dwustronną w kolorze białym lub antracytowym
- Drzwi wejściowe stalowe ocieplane i tarasowe
- Kompletna instalacja elektryczna i sanitarna wraz z tablicą rozdzielczą (bez grzejników i armatury łazienkowej)
- Przygotowanie zasilania pod bojler elektryczny i rozprowadzenie instalacji hydraulicznej
- Przygotowanie elektryki do montażu grzejników
- Ogrzewanie podłogowe w całym domu
- Podłoga wykończona w panele winylowe
- Ściany wewnętrzne z płyty OSB (lub g-k na życzenie)
- Ściany wewnętrzne wykończone płytą z białą okleiną i listwami przypodłogowymi PVC
- Ościeżnice drzwiowe regulowane białe
- Drzwi wewnętrzne MDF z okleiną białą
- Gniazdka, kontakty i gniazda RTV z wypuszczonym kablem antenowym na zewnątrz
- Oświetlenie wewnętrzne LED
- Pokrycie dachu: blacha na rąbek lub blachodachówka z orynnowaniem PVC
- Zabezpieczenie spodu domku siatką przed gryzoniami.
- Wykończenie elewacji panelami PCV, deską imitującą drewno lub szalówką drewnianą
- Obróbki blacharskie w kolorze dachu
- Zewnętrzna instalacja wodno-kanalizacyjna
Standard
Wariant z kilkoma przydatnymi dodatkami oraz podstawowym wyposażeniem wszystkich pomieszczeń wraz z łazienką.
Co dokładnie zawiera wariant Standard?
- Zawiera wszystkie elementy wariantu Light.
Dodatkowe wyposażenie ogólne:
- Meble wykonywane na wymiar
- Ościeżnice drzwiowe regulowane i Drzwi wewnętrzne MDF w różnych kolorach
- Zmiana nachylenia kąta dachu
- Wykończenie wewnętrznych ścian i sufitów: Panel Strama do wyboru z naszych wzorników
- Wykończenie zewnętrzne panelami elewacyjnymi marki Vinylit z serii VinyTop, VinyClassic
- Grzejnik elektryczny w łazience
- Kinkiety zewnętrzne
- Klimatyzacja z funkcją grzania i chłodzenia
Wyposażenie kuchni:
- Szafki kuchenne górne i dolne
- Blat kuchenny
- Zlewozmywak
- Lodówka podblatowa w zabudowie
- Miejsce na piekarnik i zmywarkę
- Okap z wbudowanym filtrem węglowym
- Płyta elektryczna 2-palnikowa
Wyposażenie salonu:
- Sofa lub narożnik.
- Stolik kawowy.
Wyposażenie sypialni:
- Łóżka z pojemnikiem na pościel i materacem
- Szafki nocne
- Szafa na ubrania z drzwiami otwieranymi w każdym pokoju
Wyposażenie łazienki:
- Kabina prysznicowa 80x80 lub 90x90 z brodzikiem
- Umywalka z baterią
- Szafka umywalkowa z szufladami lub z półkami
- Lustro
- Sedes lub Geberit
- Bojler elektryczny 50l
- Wentylator z wykrywaniem wilgoci i automatycznym włączeniem
💡 Opcje dodatkowo płatne
Rozszerz możliwości swojego domku o dodatkowe udogodnienia i technologie:
Materiały
- Cynkowanie spodu ramy
- Wełna mineralna o zwiększonej grubości
Ogrzewanie
- Kominek na pellet
- Pompa ciepła
Kuchnia
- Zmywarka 60cm
- Kuchenka mikrofalowa
- Szkło lub panel dekoracyjny na ścianie
Meble
- Łóżka piętrowe
- Dodatkowe meble
Inne
- Schody wejściowe
- Panele fotowoltaiczne
- Magazyn energii
- Rekuperacja
- Rolety zewnętrzne antywłamaniowe/alarm i moskitiery
