




Mobilny Domek całoroczny Monaco 48 m² z tarasem
Dokładny opis czym różnią się warianty wykończenia znajdziesz TUTAJ .
Model Monaco z tarasem to propozycja od Zed Mobile Homes – renomowanego producenta całorocznych domów mobilnych, który stawia na najwyższą jakość i transparentność wykonania. Ten elegancki, mobilny dom o powierzchni użytkowej bez tarasu 35m2 został zaprojektowany z myślą o tych, którzy cenią komfort, funkcjonalność i bliskość otoczenia. Idealny dla rodzin, par lub miłośników relaksu na świeżym powietrzu, Monaco łączy nowoczesną stylistykę z praktycznymi rozwiązaniami, umożliwiającymi całoroczne użytkowanie w każdych warunkach pogodowych.
Taras zewnętrzny: Zintegrowany taras (opcjonalnie drewniany lub kompozytowy) o powierzchni ok. 5m², bezpośrednio połączony z salonem przez drzwi tarasowe. To idealne miejsce na poranną kawę, grille czy wieczorne spotkania – chronione przed wiatrem i deszczem dzięki zadaszeniu. Idealnie sprawdzi się dla 2 lub 4 osób, które lubią spędzać czas z przyrodą i odpoczywać na świeżym i wsłuchiwać się w śpiew ptaków lub szum morza
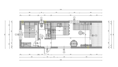
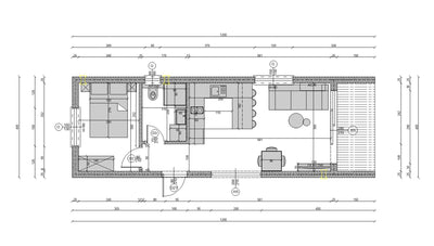
Kluczowe cechy układu:
- Elastyczność: Umożliwia dostosowanie układu pomieszczeń, takich jak liczba sypialni czy rozmieszczenie mebli, na etapie projektowym.
- Ergonomia: Przemyślany design zapewnia maksymalne wykorzystanie dostępnej przestrzeni użytkowej, łącząc kompaktowość z funkcjonalnością.
- Integracja z otoczeniem naturalnym: Taras oraz duże przeszklenia gwarantują harmonijne połączenie wnętrza z krajobrazem, sprzyjając wypoczynkowi.
🌿 Atuty domku Monaco
-
Nowoczesny design z przestronnym tarasem – idealny do relaksu na świeżym powietrzu
-
Jasne, otwarte wnętrze z dużymi przeszkleniami i panoramicznym widokiem
-
Wysoka jakość wykonania i materiały odporne na warunki atmosferyczne
-
W pełni wyposażona kuchnia i funkcjonalna łazienka w każdym wariancie
-
Izolacja termiczna gwarantująca komfort cieplny przez cały rok
-
Możliwość transportu i ustawienia w dowolnej lokalizacji
-
Gotowy do zamieszkania – bez konieczności dodatkowych prac
⚙️ Dane techniczne
| Wymiary zewnętrzne: | 12 m × 4 m |
| Powierzchnia zabudowy: | 48 m² |
| Powierzchnia użytkowa: | 35 m² |
| Wysokość zewnętrzna: | 3,5 m |
| Wysokość wewnętrzna: | 2,34 m |
| Ilość sypialni: | 1–2 |
Wybierz opcje





Galeria
DOSTĘPNE WARIANTY WYPOSAŻENIA:
Domki są dostępne w trzech wariantach wykończenia do wyboru:
Light
Wariant z podstawowym wykończeniem, do dalszego samodzielnego wyposażenia.
Co dokładnie zawiera wariant Light?
- Możliwość pełnej personalizacji pod kątem umiejscowienia okien, drzwi, ścianek działowych
- Konstrukcja stalowa z podwoziem lub bez
- Szkielet wykonany ze stalowych profili zamkniętych
- Bardzo solidny, stabilny i trwały szkielet z gęstym użebrowaniem (spawane co 60cm) zabezpieczony podkładem antykorozyjnym
- Wypełnienie podłogi, ścian i dachu ze specjalnego, certyfikowanego drewna konstrukcyjnego o wysokiej klasie wytrzymałości (C24)
- Kompaktowe osie i koła do transportu po placu
- Izolacja przeciwwilgociowa, paroizolacja i izolacja wiatrochronna w podłodze, ścianach i dachu
- Izolacja termiczna podłogi i dachu wełną mineralną o grubości 200mm w standardzie
- Izolacja termiczna ścian zewnętrznych wełną mineralną o grubości 150mm w standardzie
- Podłoga z płyty OSB o grubości 22m pióro-wpust
- Okna PCV 3-szybowe z okleiną jednostronna/dwustronną w kolorze białym lub antracytowym
- Drzwi wejściowe stalowe ocieplane i tarasowe
- Kompletna instalacja elektryczna i sanitarna wraz z tablicą rozdzielczą (bez grzejników i armatury łazienkowej)
- Przygotowanie zasilania pod bojler elektryczny i rozprowadzenie instalacji hydraulicznej
- Przygotowanie elektryki do montażu grzejników
- Ogrzewanie podłogowe w całym domu
- Podłoga wykończona w panele winylowe
- Ściany wewnętrzne z płyty OSB (lub g-k na życzenie)
- Ściany wewnętrzne wykończone płytą z białą okleiną i listwami przypodłogowymi PVC
- Ościeżnice drzwiowe regulowane białe
- Drzwi wewnętrzne MDF z okleiną białą
- Gniazdka, kontakty i gniazda RTV z wypuszczonym kablem antenowym na zewnątrz
- Oświetlenie wewnętrzne LED
- Pokrycie dachu: blacha na rąbek lub blachodachówka z orynnowaniem PVC
- Zabezpieczenie spodu domku siatką przed gryzoniami.
- Wykończenie elewacji panelami PCV, deską imitującą drewno lub szalówką drewnianą
- Obróbki blacharskie w kolorze dachu
- Zewnętrzna instalacja wodno-kanalizacyjna
Standard
Wariant z kilkoma przydatnymi dodatkami oraz podstawowym wyposażeniem wszystkich pomieszczeń wraz z łazienką.
Co dokładnie zawiera wariant Standard?
- Zawiera wszystkie elementy wariantu Light.
Dodatkowe wyposażenie ogólne:
- Meble wykonywane na wymiar
- Ościeżnice drzwiowe regulowane i Drzwi wewnętrzne MDF w różnych kolorach
- Zmiana nachylenia kąta dachu
- Wykończenie wewnętrznych ścian i sufitów: Panel Strama do wyboru z naszych wzorników
- Wykończenie zewnętrzne panelami elewacyjnymi marki Vinylit z serii VinyTop, VinyClassic
- Grzejnik elektryczny w łazience
- Kinkiety zewnętrzne
- Klimatyzacja z funkcją grzania i chłodzenia
Wyposażenie kuchni:
- Szafki kuchenne górne i dolne
- Blat kuchenny
- Zlewozmywak
- Lodówka podblatowa w zabudowie
- Miejsce na piekarnik i zmywarkę
- Okap z wbudowanym filtrem węglowym
- Płyta elektryczna 2-palnikowa
Wyposażenie salonu:
- Sofa lub narożnik.
- Stolik kawowy.
Wyposażenie sypialni:
- Łóżka z pojemnikiem na pościel i materacem
- Szafki nocne
- Szafa na ubrania z drzwiami otwieranymi w każdym pokoju
Wyposażenie łazienki:
- Kabina prysznicowa 80x80 lub 90x90 z brodzikiem
- Umywalka z baterią
- Szafka umywalkowa z szufladami lub z półkami
- Lustro
- Sedes lub Geberit
- Bojler elektryczny 50l
- Wentylator z wykrywaniem wilgoci i automatycznym włączeniem
💡 Opcje dodatkowo płatne
Rozszerz możliwości swojego domku o dodatkowe udogodnienia i technologie:
Materiały
- Cynkowanie spodu ramy
- Wełna mineralna o zwiększonej grubości
Ogrzewanie
- Kominek na pellet
- Pompa ciepła
Kuchnia
- Zmywarka 60cm
- Kuchenka mikrofalowa
- Szkło lub panel dekoracyjny na ścianie
Meble
- Łóżka piętrowe
- Dodatkowe meble
Inne
- Schody wejściowe
- Panele fotowoltaiczne
- Magazyn energii
- Rekuperacja
- Rolety zewnętrzne antywłamaniowe/alarm i moskitiery
